2
$645,800 Sale
Listed 87 days ago
932 KATIA STREET
· 2
· 2.0
· 6
· 1100 - 1500
Key Facts
Key facts for 932 KATIA STREET
Property Type
House, House
Parking
Garage: Yes, 6 parking
MLS #
X12272244
Size
1100 - 1500 sqft
Basement
Unfinished, Full (Unfinished)
Listed on
-
Lot size
-
Tax
-
Days on Market
-
Year Built
-
Maintenance Fee
-
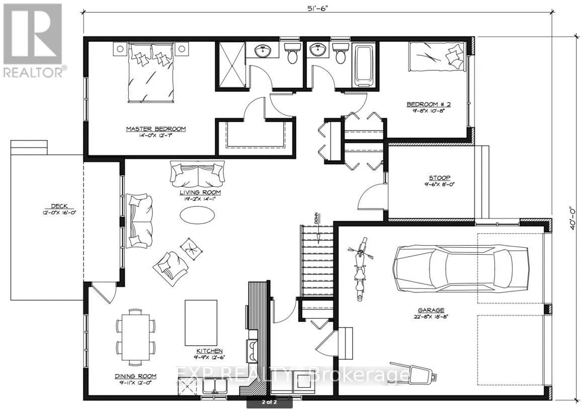
Description
OPEN HOUSE October 5th 2-4PM AT 60 Mayer St Limoges. Introducing the Modern Audrey a sleek and stylish bungalow offering 1,315 square feet of thoughtfully designed living space. With 2 bedrooms and 2 full bathrooms, this home is ideal for those seeking one-level living without compromising on comfor...t or elegance. The open-concept layout creates a seamless flow between living, dining, and kitchen areas, perfect for everyday living and entertaining. The primary suite is a true retreat, complete with its own ensuite bathroom for added privacy and relaxation. A spacious 2-car garage adds functionality and convenience, making this model perfect for downsizers, first-time buyers, or anyone looking for low-maintenance living with a modern edge. Constructed by Leclair Homes, a trusted family-owned builder known for exceeding Canadian Builders Standards. Specializing in custom homes, two-storeys, bungalows, semi-detached, and now offering fully legal secondary dwellings with rental potential in mind, Leclair Homes brings detail-driven craftsmanship and long-term value to every project. (id:10452)
Similar Properties (No results)
Room Types
Bedroom 2
-
Dimensions 3 m x 3.3 m
106.56 sqft
Dining room
-
Dimensions 3 m x 3.7 m
119.48 sqft
Kitchen
-
Dimensions 3 m x 3.8 m
122.71 sqft
Listing courtesy of: EXP REALTY
This REALTOR.ca listing content is owned and licensed by REALTOR® members of The Canadian Real Estate Association.